Loading...

steelstep.hu - emeloszakaruhaz.hu

+36 (52) 316-319

info@steelstep.hu

Székhely:

Hungary  4030 Debrecen, Diószegi út 22/2. 

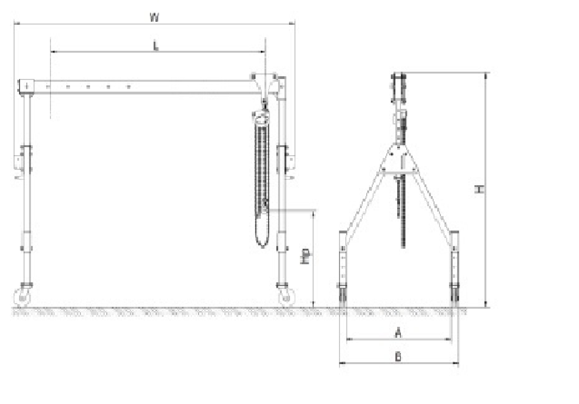
Portáldaru,   Macara portal  -  Gantry crane

Biztonságos és költséghatékony daruszerkezet mellyel a tárgy emelése és mozgatása megoldott. A bakdaru csarnokon belüli önbeálló kerekek segítségével történik.

Teherbírás
kg
Méretek (mm)
L W HP (max) H min - max A B Önsúly
kg
1500 3442 4257 2600 2022/3322 1278 1498 369

Amennyiben a megfelelő termék kiválasztásával, műszaki alkalmasságával kapcsolatban kérdése van, forduljon szakembereinkhez!
Telefon: 06 (52) 316-319